Ufficio in vendita in via Mameli
176 Via Mameli, Cagliari, Sardegna
Property Description
Cagliari, in posizione angolare tra Via Mameli e Via Caprera, nelle immediate vicinanze del Largo Carlo Felice e Via Roma, a pochi metri da tutti i servizi cittadini, Vi proponiamo in vendita appartamento uso ufficio CAT. A/10 di circa 110 mq.
La proprietà di grande interesse si sviluppa su pianta abbastanza regolare e si presente totalmente ristrutturata, situata al piano ammezzato con altezza interna di 2,47 mt. , di un palazzo risalente agli anni 60.
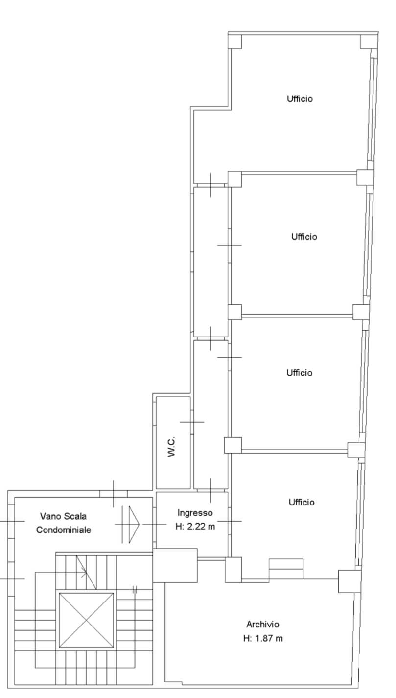
Attualmente l’immobile è costituito da uno spazioso ingresso che conduce al primo ufficio con archivio e servizio wc, e al disimpegno collegato con altri tre uffici ed un ulteriore servizio wc.
Ottimo investimento, ideale per professionisti e studi generici.
APE: “D”
Basic Details
- Tipo di Proprietà:
- Office
- Tipo Elenco:
- Commerciale vendita
- ID Elenco:
- 1004
- Prezzo:
- €179,000
- Vista:
- Strada
- Stanze:
- 4
- Bagni:
- 1
- Superficie commerciale:
- 106 m²
- Anno di costruzione:
- 1960
- Superficie netta:
- 106 m²
Features
- Heating System:
- Split
- Cooling System:
- Split
- Elevator
Appliances
- Telephone
- Internet
Address Map
- Country:
- IT
- Regione:
- S
- Provincia:
- CA
- City:
- Cagliari
- Via:
- Via Mameli
- n.:
- 176
- Piano:
- 1
Neighborhood
- Train Station 15 Minuti
- Bus Station 15 Minuti
- Airport 15 Minuti
Office
Commerciale vendita
- ID Elenco:
- 1004
- Bagni:
- 1
- Superficie commerciale:
- 106 m²
€179,000
Agent info
Contact Agent









